전기안전공사 준비, 전기 분전반 배전반 판넬 주문제작 써본 후기

전기안전공사 준비, 전기 분전반 배전반 판넬 직접 주문제작해보셨나요?

전기안전공사 앞두고 분전함 한 번씩은 갈아보셨을 거예요. 저도 이번에 작업실 전기 설비를 손보면서, 기성품 말고 직접 스펙을 정해서 쓰고 싶다는 생각이 들더라고요. 특히 전기안전공사 점검을 준비하다 보니, 필요한 차단기 수나 여유 회로, 배선 동선까지 제가 원하는 대로 맞추고 싶었습니다.

예전에는 공구상가에서 완제품 분전함을 사 와서 그냥 쓰곤 했는데, 막상 설치해보면 누전차단기 자리나 예비 공간이 애매하게 남거나 부족한 경우가 많았습니다. 그러다 보니 나중에 회로를 더 추가하려면 다시 손을 봐야 하고, 배선도 지저분해지기 쉬웠죠. 전기안전공사 검사 받을 때마다 ‘처음부터 깔끔하게 짜둘 걸’ 하는 아쉬움이 늘 남았습니다.

그래서 이번에는 아예 DIY 주문제작 가능한 곳을 찾아보자 하고 알아보다가, 주식회사 거성종합전기의 3상용 전기판넬을 알게 됐어요. 3상 분전반을 주문제작해주는 곳이라, 제 작업 환경에 맞춰서 회로 구성과 차단기 배치를 세밀하게 주문할 수 있겠다는 생각이 들었습니다. 특히 전기 관련 작업을 하는 전문가 분들이 많이 이용한다는 후기를 보고 신뢰가 좀 갔어요.

결론부터 말하면, 전기안전공사 준비하는 입장에서 ‘아, 이래서 주문제작을 하는구나’ 싶었습니다. 필요한 누전차단기 수, 예비 회로, 오퍼레이터 위치까지 제가 정한 대로 반영되니 시공이 훨씬 수월했거든요. 아래에서 제가 실제로 주문했던 전기 3상 분전반 배전반 전기판넬 DIY 주문제작건. 기준으로, 어떤 점이 편했는지 하나씩 정리해볼게요.

주식회사 거성종합전기의 전기 판넬, 어떤 상품이었냐면요?

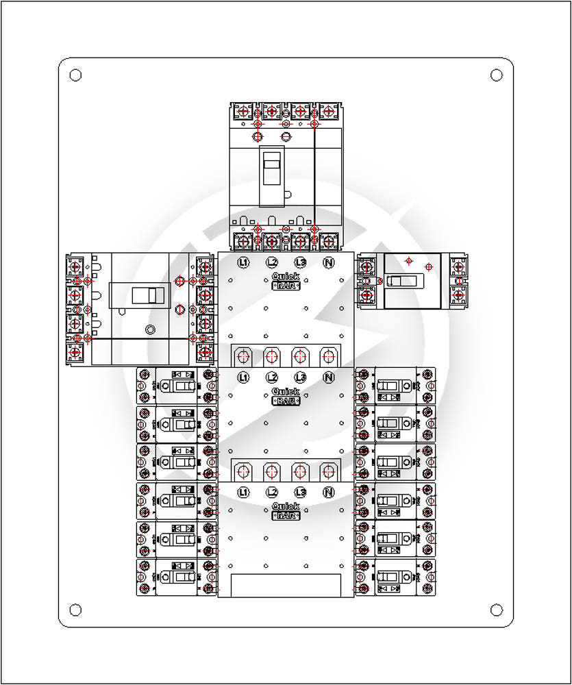
제가 주문한 건 주식회사 거성종합전기에서 제작해주는 3상용 전기판넬입니다. 기본적으로 3상 분전반 구조를 갖춘 배전반이고, 내부 구성은 주문 단계에서 제가 원하는 대로 조정할 수 있었어요. 카테고리상으로는 생활/건강 > 공구 > 전기용품 > 기타 전기용품에 속하지만, 실제로는 현장에서 쓰는 실무용 분전반에 가깝습니다.

핵심은 DIY 주문제작이라는 점입니다. 단순히 박스만 보내주는 게 아니라, 제가 요청한 대로 차단기 수량과 용량, 단자대 구성, 예비 공간 등을 반영해서 조립된 상태로 보내주더라고요. 그래서 전기 관련 작업을 하는 전문가 입장에서는 현장에 가져가 바로 배선만 연결하면 돼서 시간 절약이 꽤 컸습니다. DIY를 선호하는 소비자라면, 원하는 구성으로 맞춰서 받아볼 수 있다는 점이 매력적일 것 같아요.

가격은 작성일 기준 약 10,000원대부터 시작하는데, 구성이나 스펙에 따라 달라질 수 있습니다. 기본형 하이박스만 필요한 경우와, 내부에 누전차단기·배선용차단기·LBS까지 포함해달라고 할 때는 당연히 금액 차이가 있겠죠. 그래도 제가 느끼기엔, 같은 스펙으로 현장에서 일일이 부품 사서 조립하는 수고를 생각하면 가성비는 나쁘지 않았습니다.

또 하나 만족스러웠던 건 빠른 배송이었습니다. 전기안전공사 일정이 잡혀 있어서 시간이 촉박했는데, 주문 후 제작 기간이 길지 않아서 일정 맞추기가 수월했어요. 일반 기성품처럼 바로 출고되는 건 아니지만, 주문제작치고는 준비와 발송이 빠른 편이라 일정 관리에 도움이 됐습니다. 덕분에 검사 전까지 여유를 두고 배선 정리와 테스트까지 끝낼 수 있었어요.

DIY 3상 전기판넬 vs 기성 분전함 사양·가격 비교 (작성일 기준 예시)

구분제품명구성적용 전원주요 용도가격대(변동 가능)
A거성종합전기 DIY 3상 전기판넬주문 스펙에 따른 차단기·단자대·예비공간 구성3상작업실, 소규모 공장, 상가 전기안전공사 대비약 10,000원대부터 (스펙별 상이)
B일반 기성 분전함고정된 차단기 수량, 제한적인 예비공간단상/3상 혼합가정용, 간단한 설비 교체구성에 따라 다양, 보통 저렴하지만 추가 작업 필요

표를 보시면 아시겠지만, 거성종합전기 제품은 처음부터 전기안전공사나 소규모 설비 공사에 맞춰 쓰기 좋은 구성이에요. 반대로 일반 기성 분전함은 당장 눈앞의 교체에는 편하지만, 나중에 회로 추가나 설비 증설을 고려하면 다시 손을 봐야 할 가능성이 큽니다. 저는 이번에 검사 일정이 잡혀 있어서, 처음부터 여유 회로까지 확보하는 쪽을 택했습니다.

어떻게 주문제작했냐면, 스펙이랑 구성은 이렇게 정했어요

먼저 전기 사용량과 앞으로 추가될 설비까지 고려해서, 3상 메인 차단기 용량을 정했습니다. 그다음에는 각 회로별로 누전차단기와 배선용차단기 구성을 어떻게 나눌지 고민했어요. 전기안전공사에서는 누전 보호가 특히 중요하다 보니, 인버터나 특수 부하를 제외하고는 주요 회로에 누전차단기를 배치하는 쪽으로 스펙을 잡았습니다. 이 부분은 현장 상황에 따라 다를 수 있으니, 본인 사용 패턴을 꼭 먼저 체크하시는 걸 추천드려요.

외함은 실내 설치라 IP 등급을 크게 높일 필요는 없었지만, 먼지가 많은 환경이라 어느 정도 밀폐가 되는 타입을 선택했습니다. 쉽게 말하면 튼튼한 하이박스 기반의 구조라고 보시면 될 것 같아요. 내부에는 단자대를 여유 있게 배치해달라고 요청했고, 추후 회로 추가를 위해 예비 공간도 남겨달라고 했습니다. 이렇게 해두니 나중에 조명 회로를 하나 더 빼고 싶을 때도 부담이 적을 것 같더라고요.

또 하나 신경 쓴 부분이 메인 개폐 장치와 LBS 쪽입니다. 비상 시 한 번에 전원을 끊을 수 있도록, 패널 전면에서 조작이 편한 구조를 원했거든요. 그래서 오퍼레이터 위치를 눈에 잘 띄고 손이 잘 닿는 상단 쪽으로 배치해달라고 요청했습니다. 실제 설치 후에 테스트해보니, 비상 상황을 가정하고도 동선이 깔끔해서 마음이 좀 놓이더라고요.

주문 과정 자체는 어렵지 않았습니다. 상품 페이지인 전기 3상 분전반 배전반 전기판넬 DIY 주문제작건.을 기준으로, 필요한 스펙을 정리해서 전달하면 됩니다. 전기 관련 작업을 하는 전문가라면 회로 구성표나 단선도를 같이 보내는 것도 좋은 방법이에요. DIY를 선호하는 소비자분들은, 최소한 메인 차단기 용량과 필요한 회로 수 정도는 미리 정리해두시면 상담이 훨씬 수월합니다.

주의하실 점은, 전기 설비 특성상 잘못된 스펙 선택이나 시공은 안전 문제로 이어질 수 있다는 거예요. 기본적인 전기 지식이 없다면, 설계와 시공은 반드시 자격을 갖춘 전문가와 상의하시길 권합니다. 특히 3상 설비는 단상보다 복잡하고, 전기안전공사 기준도 더 엄격할 수 있으니, 설계 단계에서부터 여유 용량과 차단기 정격을 꼼꼼하게 체크하셔야 합니다.

기성 분전함이랑 뭐가 달랐냐면, 이 점이 제일 컸습니다

실제로 설치해보니, 기성 분전함과 가장 크게 느껴진 차이는 ‘처음부터 내 작업에 맞게 짜여 있다’는 점이었습니다. 예전에는 기성품을 사 와서 내부에 없는 부품을 추가로 달거나, 필요 없는 차단기를 빼고 다시 배선하는 일이 잦았거든요. 이번에는 제가 원하는 대로 구성된 전기판넬이 도착하니, 현장에서는 배선 연결과 마감에만 집중할 수 있어서 훨씬 효율적이었습니다.

두 번째로는 전기안전공사 대비가 훨씬 수월했다는 점입니다. 회로별 용도와 차단기 용량을 처음부터 명확히 나눠두니, 검사 전에 점검표를 작성하기도 편했고, 실제 검사 때도 설명이 깔끔하게 떨어졌어요. 특히 누전 보호가 필요한 회로와 그렇지 않은 회로를 구분해둔 덕분에, 누전차단기 트립 테스트도 한 번에 정리할 수 있었습니다. 이런 부분은 전기 관련 작업을 하는 전문가 분들이라면 바로 체감하실 거예요.

세 번째는 작업 동선과 유지보수 편의성입니다. 오퍼레이터 위치, 예비 회로, 단자대 배치까지 제가 미리 생각한 대로 반영돼 있다 보니, 나중에 설비를 추가하거나 회로를 변경할 때도 구조가 눈에 잘 들어옵니다. 기존 기성 분전함은 내부가 꽉 차 있거나, 회로 구성이 애매하게 섞여 있어서 유지보수 때마다 시간을 많이 썼는데, 이번에는 패널 문만 열면 한눈에 파악이 되더라고요.

물론 단점이 아예 없는 건 아닙니다. 기성품보다 초기 설계에 시간을 조금 더 써야 하고, 스펙을 잘못 지정하면 다시 제작해야 할 수도 있어요. 그래서 DIY를 선호하는 소비자라 해도, 기본적인 설계는 전문가와 상의하는 걸 추천드립니다. 그럼에도 불구하고, 전기안전공사 준비나 작업실·상가 전기 리모델링을 계획하고 계신 분이라면, 한 번쯤은 주문제작 분전반을 고려해볼 만한 선택지라고 느꼈습니다.

Q1. 전기 비전문가도 주문제작 전기판넬을 사용할 수 있나요?
A1. 주문 자체는 전기 비전문가도 할 수 있지만, 3상 분전반 설계와 시공은 안전과 직결되기 때문에 전기기사·전기기능사 등 자격을 갖춘 전문가와 반드시 상의하시는 걸 권장드립니다. 특히 전기안전공사 대상 설비라면, 설계 단계부터 규정에 맞게 구성해야 합니다.
Q2. 누전차단기 구성은 어떻게 정하는 게 좋을까요?
A2. 일반적으로 인체 보호가 필요한 콘센트 회로나 습기가 많은 장소에는 누전차단기 사용이 권장됩니다. 다만 인버터나 특수 부하는 누전차단기와 상성이 안 맞을 수 있어, 회로별 특성을 고려해 전문가와 상담 후 결정하는 게 안전합니다.
Q3. 하이박스 외함 말고 다른 타입도 가능한가요?
A3. 기본적으로는 실사용 환경에 맞는 외함을 선택할 수 있으며, 실내·실외, 방진·방수 등급에 따라 달라질 수 있습니다. 구체적인 외함 사양은 주문 전 판매자와 상담하면서 조율하는 것이 좋습니다.
Q4. LBS나 오퍼레이터 위치도 변경 요청이 가능한가요?
A4. 예, 주문제작의 장점이 바로 이런 부분입니다. 비상 시 조작성을 높이기 위해 오퍼레이터 위치를 상단이나 측면 등 원하는 위치로 요청할 수 있으며, 구조적으로 가능한 범위 내에서 반영해주는 방식입니다.
Q5. 배송 기간은 어느 정도 걸리나요?
A5. 기성품보다는 시간이 조금 더 필요하지만, 제가 주문했을 때는 주문제작치고 꽤 빠른 배송이었습니다. 다만 작업량이나 스펙에 따라 달라질 수 있으니, 전기안전공사 일정이 잡혀 있다면 여유를 두고 주문하시는 걸 추천드립니다.
Q6. 가격은 어느 정도 예상하면 될까요?
A6. 작성일 기준으로 약 10,000원대부터 시작하지만, 차단기 용량·수량, 외함 사양 등에 따라 달라집니다. 정확한 금액은 원하는 스펙을 정리해 판매자에게 문의하시는 게 가장 확실합니다.
Q7. DIY를 선호하는 소비자인데, 어떤 점을 특히 주의해야 할까요?
A7. 전기는 안전이 최우선입니다. 외함 설치나 배선 정리는 어느 정도 DIY가 가능하더라도, 메인 전원 연결과 보호장치 선정은 전문가에게 맡기거나 최소한 검수를 받는 것이 좋습니다. 전기안전공사 기준도 반드시 확인하세요.

정리해보면, 저는 이번에 주문제작 3상 분전반을 써보면서 ‘처음 설계 단계에서 조금 더 고민하면, 나중이 훨씬 편해진다’는 걸 다시 느꼈습니다. 전기안전공사 준비 중이시거나, 작업실·상가 전기 설비를 손보실 계획이라면, 여러분이라면 어떤 스펙으로 전기판넬을 구성해보고 싶으신가요?

※ 본 포스팅은 직접 체험 후 솔직하게 작성한 리뷰입니다.
본 포스팅은 체험 후 작성되었습니다.

댓글 남기기